Rehabilitación del Convento de las Salesas de Pamplona

Concurso

Primer Premio / First Prize

Convocado por

Servicios de la Comarca de Pamplona, S.A. SCPSA

Fecha

2018 - 2023

Superficie

7.324,41 m2

Premio

Premio COAM. Premio Asprima. Finalista Premios FAD. Seleccionado CSCAE

El mayor acierto de este proyecto es una decisión política: agrupar todas las oficinas de la Mancomunidad de los Municipios de la Comarca de Pamplona –MCP/SCPSA-  en el corazón de la ciudad; reutilizar un edificio singular pero abandonado, el antiguo Convento de las Salesas; y evitar, de este modo, construir un edificio nuevo en la periferia. 

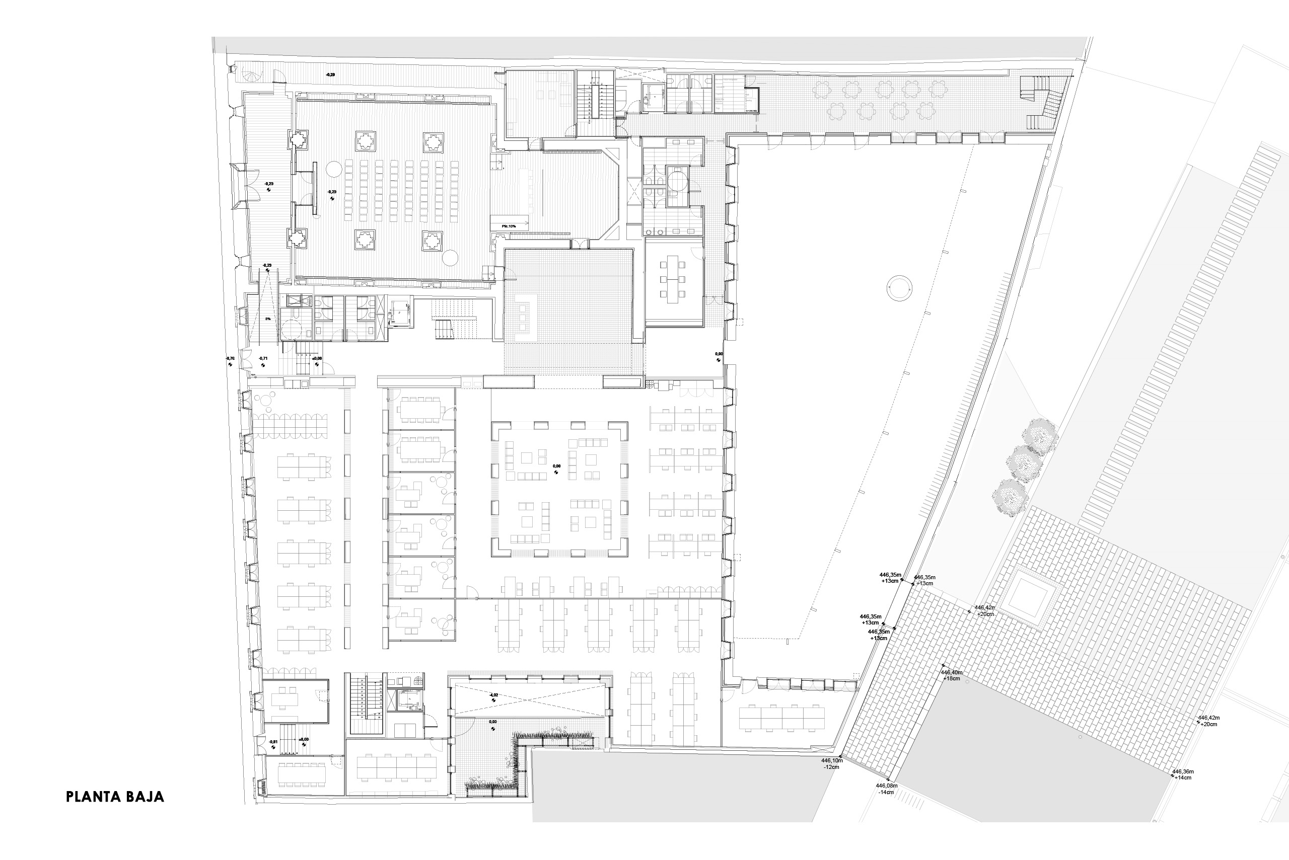
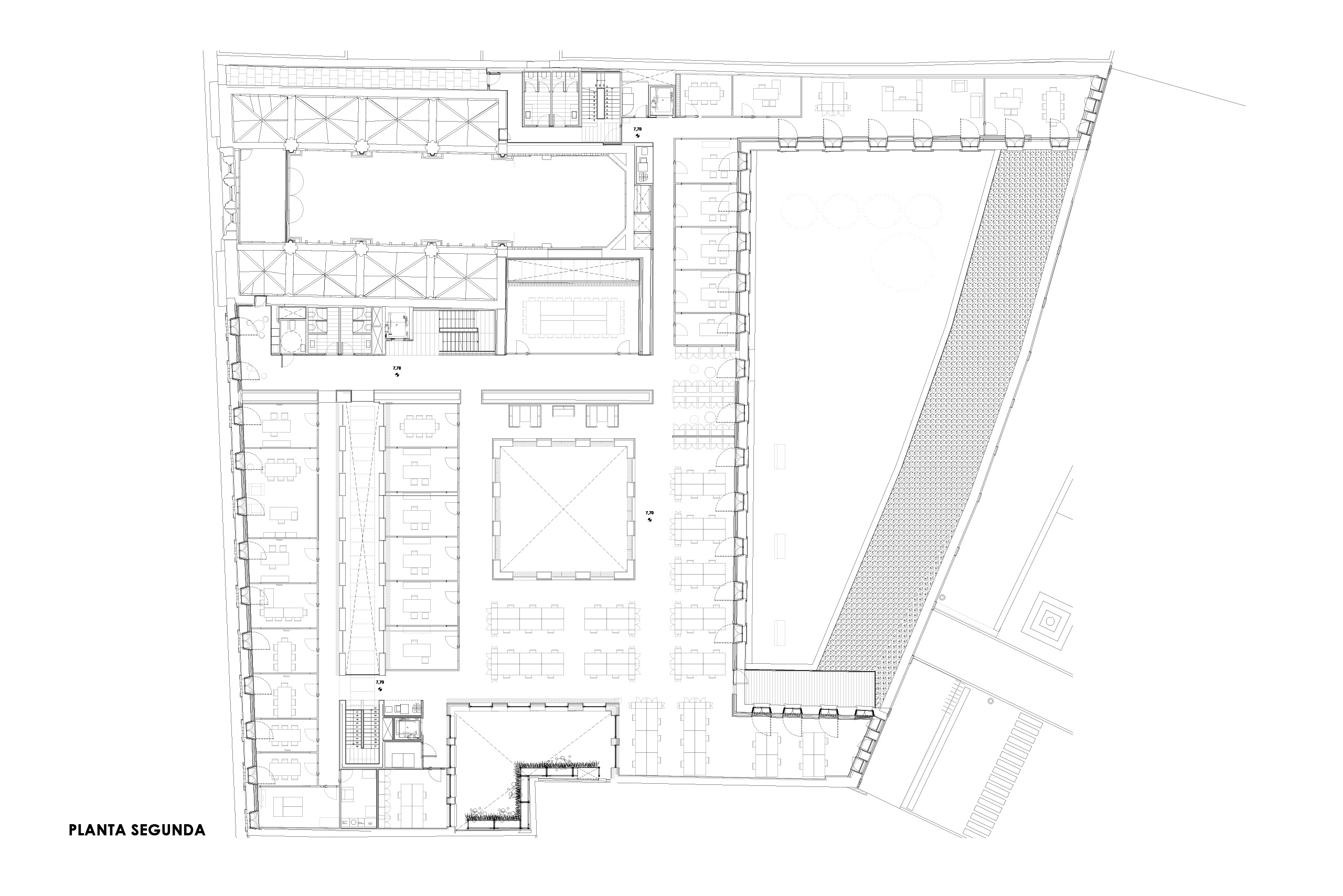
La intervención en el Convento de las Salesas es una intervención de mínimos, pero busca obtener el máximo beneficio para la ciudad y para la entidad pública que lo promueve. Parece que apenas se intervine en la edificación, pero se han producido cambios significativos aunque pasen casi desapercibidos. Estos son los objetivos principales que se persiguen

1. Cambiar la relación del convento con la ciudad. Un edificio que en su origen formaba parte de la antigua muralla y niega la relación extramuros, ahora se le da la vuelta y se abre al nuevo ensanche. El antiguo huerto trasero se convierte en antesala del edificio y se conecta a la ciudad vinculándose con los jardines y espacios públicos del Baluarte.

2. Realizar una intervención mínima con un doble objetivo patrimonial y ambiental. Patrimonial, porque el edificio forma parte del imaginario colectivo de la ciudad y está protegido. Mantener las trazas del convento no solo es necesario, sino que estructura y facilita todo el proceso ordenando las estancias en torno los  tres patios originales. Y ambiental, porque desde esta intervención se logra el mínimo impacto: solo se demuele lo estrictamente necesario y se reutiliza todo lo que está a nuestra disposición. La optimización del uso del espacio existente hace que solo resulte necesario realizar una pieza nueva de apenas quinientos metros cuadrados en el patio de acceso, cerrando la perspectiva del nuevo espacio público.

3. Utilizar tecnología optimizada y avanzada. Dos decisiones técnicas permiten una intervención sofisticada pero que pasa casi desapercibida: el empleo de estructura de madera en CLT y el acondicionamiento con geotermia. La nueva estructura permite mantener los muros de carga existentes, quitando los tabiques y los muros secundarios. Permite, también, introducir el programa de oficinas, que esta entidad pública demanda, de manera óptima. Pero deben resolverse luces de hasta nueve metros con una altura libre existente muy limitada y con una estructura muy ligera que no sobrecargue los muros. Toda la estructura introducida se limita a vigas de CLT con una sección estandarizada de 44 cm. de canto por 12 de ancho, con inter eje variable y vigas de refuerzo puntuales. Con esta pieza se resuelve toda la intervención optimizando coste, tiempo y espacio en sección. El acondicionamiento se resuelve con un sistema principal de geotermia. La elevada inercia térmica de los muros existentes, un factor de forma que minimiza las envolventes y un elevado índice de aislamiento ayudan a conseguir un edificio de consumo casi nulo (NZEB).

4. Compromiso medioambiental: uno de los principales objetivos de esta entidad pública es su política firme de compromiso con el medioambiente. En su agenda está fijada, como objetivo prioritario, la descarbonización. La generación mínima de residuos, el reciclaje de lo existente, el empleo de una estructura de madera de origen certificado, de materiales con una mínima huella en su producción, de energías limpias y renovables así como la optimización del consumo energético permiten conseguir ese objetivo que tiene, también, un carácter didáctico al poder ser transmitido a la ciudadanía con el ejemplo desde sus propias instalaciones.

Arquitectos Matos Castillo Arquitectos (Alberto M. Castillo, Beatriz Matos) + RuedaPizarro Arquitectos + Estudio Álvarez Sala Colaboradores Dirección de obra Tabuenca & Leache arquitectos Constructora ACR Colaboradores Jaime Rodríguez-Vigil, Álvaro Parra, Begoña Torreira, Javier Fuentes, María Martínez Morón, Laura Sánchez Carrasco Estructura e ingeniería TRES D TRES Ingeniería Arquitecto Técnico Javier Urdaci Fotógrafías Pedro Pegenaute, Alberto Martínez Castillo, Ana Matos

El mayor acierto de este proyecto es una decisión política: agrupar todas las oficinas de la Mancomunidad de los Municipios de la Comarca de Pamplona –MCP/SCPSA-  en el corazón de la ciudad; reutilizar un edificio singular pero abandonado, el antiguo Convento de las Salesas; y evitar, de este modo, construir un edificio nuevo en la periferia. 

La intervención en el Convento de las Salesas es una intervención de mínimos, pero busca obtener el máximo beneficio para la ciudad y para la entidad pública que lo promueve. Parece que apenas se intervine en la edificación, pero se han producido cambios significativos aunque pasen casi desapercibidos. Estos son los objetivos principales que se persiguen

1. Cambiar la relación del convento con la ciudad. Un edificio que en su origen formaba parte de la antigua muralla y niega la relación extramuros, ahora se le da la vuelta y se abre al nuevo ensanche. El antiguo huerto trasero se convierte en antesala del edificio y se conecta a la ciudad vinculándose con los jardines y espacios públicos del Baluarte.

2. Realizar una intervención mínima con un doble objetivo patrimonial y ambiental. Patrimonial, porque el edificio forma parte del imaginario colectivo de la ciudad y está protegido. Mantener las trazas del convento no solo es necesario, sino que estructura y facilita todo el proceso ordenando las estancias en torno los  tres patios originales. Y ambiental, porque desde esta intervención se logra el mínimo impacto: solo se demuele lo estrictamente necesario y se reutiliza todo lo que está a nuestra disposición. La optimización del uso del espacio existente hace que solo resulte necesario realizar una pieza nueva de apenas quinientos metros cuadrados en el patio de acceso, cerrando la perspectiva del nuevo espacio público.

3. Utilizar tecnología optimizada y avanzada. Dos decisiones técnicas permiten una intervención sofisticada pero que pasa casi desapercibida: el empleo de estructura de madera en CLT y el acondicionamiento con geotermia. La nueva estructura permite mantener los muros de carga existentes, quitando los tabiques y los muros secundarios. Permite, también, introducir el programa de oficinas, que esta entidad pública demanda, de manera óptima. Pero deben resolverse luces de hasta nueve metros con una altura libre existente muy limitada y con una estructura muy ligera que no sobrecargue los muros. Toda la estructura introducida se limita a vigas de CLT con una sección estandarizada de 44 cm. de canto por 12 de ancho, con inter eje variable y vigas de refuerzo puntuales. Con esta pieza se resuelve toda la intervención optimizando coste, tiempo y espacio en sección. El acondicionamiento se resuelve con un sistema principal de geotermia. La elevada inercia térmica de los muros existentes, un factor de forma que minimiza las envolventes y un elevado índice de aislamiento ayudan a conseguir un edificio de consumo casi nulo (NZEB).

4. Compromiso medioambiental: uno de los principales objetivos de esta entidad pública es su política firme de compromiso con el medioambiente. En su agenda está fijada, como objetivo prioritario, la descarbonización. La generación mínima de residuos, el reciclaje de lo existente, el empleo de una estructura de madera de origen certificado, de materiales con una mínima huella en su producción, de energías limpias y renovables así como la optimización del consumo energético permiten conseguir ese objetivo que tiene, también, un carácter didáctico al poder ser transmitido a la ciudadanía con el ejemplo desde sus propias instalaciones.

Arquitectos Matos Castillo Arquitectos (Alberto M. Castillo, Beatriz Matos) + RuedaPizarro Arquitectos + Estudio Álvarez Sala Colaboradores Dirección de obra Tabuenca & Leache arquitectos Constructora ACR Colaboradores Jaime Rodríguez-Vigil, Álvaro Parra, Begoña Torreira, Javier Fuentes, María Martínez Morón, Laura Sánchez Carrasco Estructura e ingeniería TRES D TRES Ingeniería Arquitecto Técnico Javier Urdaci Fotógrafías Pedro Pegenaute, Alberto Martínez Castillo, Ana Matos