Exposición Portugal: Arquitectura s.XX

Promotor

Ministerio de Fomento

Constructor

Fornieles

Fecha

1998

Premio

Finalista Premios FAD 1999

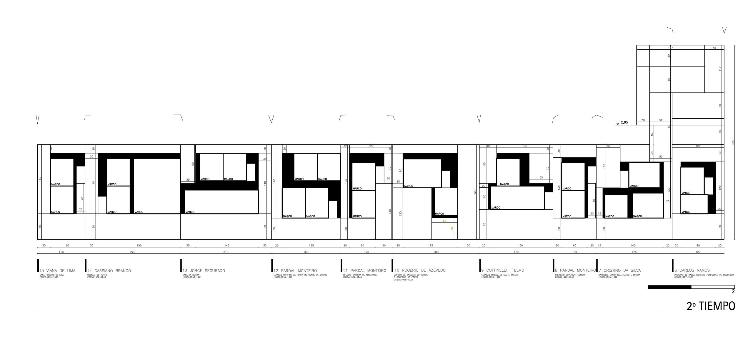
La exposición venía en itinerancia a Madrid tras su exposición en el museo de arquitectura de Frankfurt. Constaba de dibujos originales, fotografías, maquetas y objetos y mobiliario diseñado por arquitectos. Hubo que hacer una selección porque la exposición completa no cabía en la sala.  

El proyecto fue muy rápido y el presupuesto escaso. Decidimos construir un gran biombo de acero que unificara las dos alturas de que constaba la sala y facilitara un recorrido continuo a través de los “Siete Tiempos” en que estaba dividida la exposición. Recortes en el acero albergaban la selección de dibujos enmarcados prevista. Objetos y Maquetas se disponían independientes.  

Más allá de la fantástica arquitectura que la exposición mostraba, el acero del montaje nos recordaba un cierto aroma Atlántico.

Arquitectos Alberto Martínez Castillo, Beatriz Matos Castaño Colaboradores Fernando Sanz Iglesias, Montserrat Rayo, Marian Cali Fotografías Hisao Suzuki

La exposición venía en itinerancia a Madrid tras su exposición en el museo de arquitectura de Frankfurt. Constaba de dibujos originales, fotografías, maquetas y objetos y mobiliario diseñado por arquitectos. Hubo que hacer una selección porque la exposición completa no cabía en la sala.  

El proyecto fue muy rápido y el presupuesto escaso. Decidimos construir un gran biombo de acero que unificara las dos alturas de que constaba la sala y facilitara un recorrido continuo a través de los “Siete Tiempos” en que estaba dividida la exposición. Recortes en el acero albergaban la selección de dibujos enmarcados prevista. Objetos y Maquetas se disponían independientes.  

Más allá de la fantástica arquitectura que la exposición mostraba, el acero del montaje nos recordaba un cierto aroma Atlántico.

Arquitectos Alberto Martínez Castillo, Beatriz Matos Castaño Colaboradores Fernando Sanz Iglesias, Montserrat Rayo, Marian Cali Fotografías Hisao Suzuki