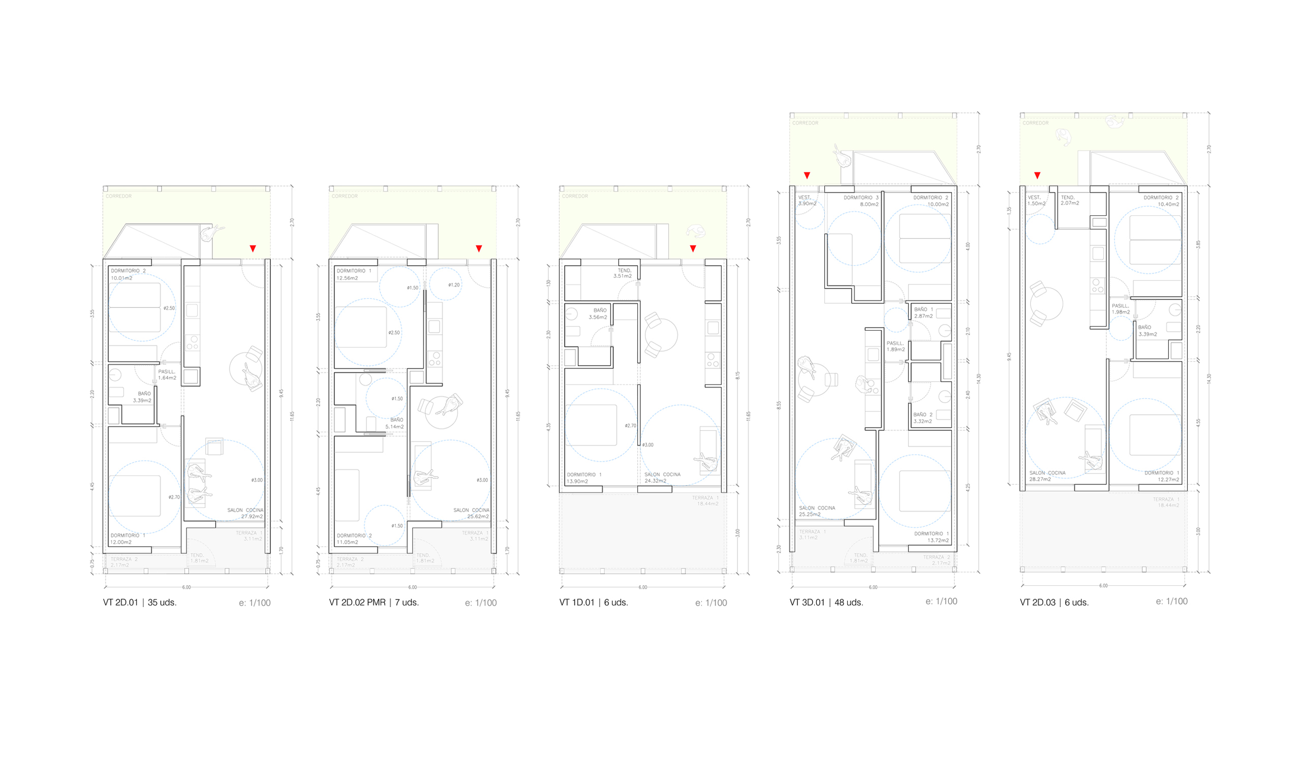
Concurso para 166 viviendas VPPA en Nuevo Mahou-Calderón, Madrid

Fecha

2025

Convocado por

Empresa Municipal de la Vivienda y Suelo de Madrid, EMVS

Arquitectos Matos Castillo Arquitectos (Alberto M. Castillo, Beatriz Matos) + Zigzag Arquitectura Colaboradores Jaime Rodríguez-Vigil Infografías Jaime Rodríguez-Vigil

Arquitectos Matos Castillo Arquitectos (Alberto M. Castillo, Beatriz Matos) + Zigzag Arquitectura Colaboradores Jaime Rodríguez-Vigil Infografías Jaime Rodríguez-Vigil